Vakantiewoning - ARD112
België • Ardennen (Luxemburg) • Vielsalm
Bekijk alle 15 foto's
Vakantiewoning - ARD112 - België
Vakantiewoning - ARD112 - België
30 persoons vakantiehuis in Vielsalm, Belgische Ardennen
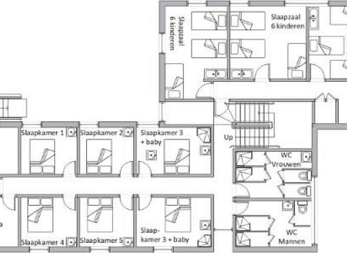
Deze groepsaccommodatie is een nieuwe, stijlvolle vakantiewoning voor een 30-tal personen, ideaal voor families en groepen of bedrijven die opzoek zijn naar comfort. Comfort vertaalt zich in ruimte en een degelijk interieur en een waaier aan faciliteiten. Vanuit dit vakantiehuis kunt u optimaal geniet van al het moois dat de Ardennen U te bieden heeft. Vielsalm is de bestemming bij uitstek , zowel om te ontspannen als om actief te zijn. Deze streek, met haar ongerepte natuur, laat U via bewegwijzerde wandel- en fietspaden, de natuurlijke en architecturale rijkdommen ontdekken.De accommodatie is modern ingericht en nodigt uit tot heerlijk ontspannen. Op de begane grond vindt u een ruime eetkamer met zicht op eindeloze weilanden. De volledig ingerichte, ruime keuken is voorzien van vitro-keramische kookplaten (vijf pitten), stoomoven/oven, twee koelkasten, één diepvriezer, twee magnetrons, twee vaatwassers, filter koffiezetapparaat, enzovoorts. In de woonkamer is een comfortabele zithoek, een flatscreen TV, een gezellige houtkachel en heeft u toegang tot het terras. Tevens is hier een ontspanningsruimte met een biljart en speelgoed voor de kleinste gasten.Op de eerste etage vindt u in totaal negen slaapkamers: twee slaapkamers met een tweepersoonsbed, douche en wastafel, vier slaapkamers met tweepersoonsbed en wastafel en drie slaapkamers met drie stapelbedden en een dubbele wastafel. De badruimte is gescheiden in een gedeelte voor dames en heren. Elk gedeelte heeft twee aparte douche, twee aparte toiletten en een dubbele wastafel. Tevens is er een seminaire ruimte met draadloos netwerk. Daarnaast kunt u heerlijk ontspannen in de wellnessruimte voorzien van een sauna, douche en ligstoelen. Ook is er een zonnig dakterras van waaruit u een prachtig uitzicht over de omgeving heeft. Rondom de woning is er meer dan genoeg ruimte om te spelen, te schommelen, te klimmen en te glijden.
Deze groepsaccommodatie is een nieuwe, stijlvolle vakantiewoning voor een 30-tal personen, ideaal voor families en groepen of bedrijven die opzoek zijn naar comfort. Comfort vertaalt zich in ruimte en een degelijk interieur en een waaier aan faciliteiten. Vanuit dit vakantiehuis kunt u optimaal geniet van al het moois dat de Ardennen U te bieden heeft. Vielsalm is de bestemming bij uitstek , zowel om te ontspannen als om actief te zijn. Deze streek, met haar ongerepte natuur, laat U via bewegwijzerde wandel- en fietspaden, de natuurlijke en architecturale rijkdommen ontdekken.De accommodatie is modern ingericht en nodigt uit tot heerlijk ontspannen. Op de begane grond vindt u een ruime eetkamer met zicht op eindeloze weilanden. De volledig ingerichte, ruime keuken is voorzien van vitro-keramische kookplaten (vijf pitten), stoomoven/oven, twee koelkasten, één diepvriezer, twee magnetrons, twee vaatwassers, filter koffiezetapparaat, enzovoorts. In de woonkamer is een comfortabele zithoek, een flatscreen TV, een gezellige houtkachel en heeft u toegang tot het terras. Tevens is hier een ontspanningsruimte met een biljart en speelgoed voor de kleinste gasten.Op de eerste etage vindt u in totaal negen slaapkamers: twee slaapkamers met een tweepersoonsbed, douche en wastafel, vier slaapkamers met tweepersoonsbed en wastafel en drie slaapkamers met drie stapelbedden en een dubbele wastafel. De badruimte is gescheiden in een gedeelte voor dames en heren. Elk gedeelte heeft twee aparte douche, twee aparte toiletten en een dubbele wastafel. Tevens is er een seminaire ruimte met draadloos netwerk. Daarnaast kunt u heerlijk ontspannen in de wellnessruimte voorzien van een sauna, douche en ligstoelen. Ook is er een zonnig dakterras van waaruit u een prachtig uitzicht over de omgeving heeft. Rondom de woning is er meer dan genoeg ruimte om te spelen, te schommelen, te klimmen en te glijden.
Voor meer informatie ga naar onze website klik hier
Verblijf
- Vakantiewoning
- Max. 30 personen
- 15 slaapkamers
- Adres: Vielsalm
Faciliteiten
- Koelkast
- Magnetron
- Televisie
- Terras met tuinset
- Vaatwasser
- WiFi
- Huisdieren toegestaan
- Roken toegestaan
Gastenboek
Locatie
Niet helemaal het huisje waar u naar op zoek was?
Andere websitebezoekers die in ARD112 geïntresseerd zijn, bekeken ook: